Mieszkanie na sprzedaż 44,10 m²

Kraków, Podgórze, Zabłocie

Symbol oferty: MS-6536
Cena
950 000
cena za m2
21 541,95 zł/m²
Powierzchnia
44,10 m²
Piętro
parter

Szczegóły oferty

Symbol oferty MS-6536
Powierzchnia 44,10 m²
Powierzchnia użytkowa 44,10 m²
Powierzchnia balkonów/tarasów 20,00 m²
Ilość pokoi 2
Rodzaj budynku apartamentowiec
Technologia budowlana nowa cegła
Standard
Opłaty w czynszu CO, Fundusz remontowy, Śmieci, Woda
Opłaty wg liczników CO, Prąd, Woda
Ilość pięter w budynku 6
Garaż miejsce parkingowe
Piwnica 3,72 m²
Stan lokalu Do odświeżenia
Stan prawny Własność
Czynsz 600 PLN
Czynsz zimowy 600 PLN
Okna nowe PCV
Instalacje nowe
Balkon brak
Liczba tarasów 1
Rok budowy 2016
Plac zabaw tak
Gaz brak
Woda tak - miejska
Dojazd asfalt
Otoczenie działki zabudowane
Ogrzewanie miejskie
Winda tak
Tarasy taras duzy
Drzwi antywłamaniowe tak
Przystosowania dla niepełnosprawnych tak
Rolety antywłamaniowe tak
Piętro parter
Pośrednik w Obrocie Nieruchomościami
Beata Pastuszka

500 094 148

Opis

!!! Nowa niższa cena !!!
Polecamy komfortowe, doskonale zlokalizowane mieszkanie dwupokojowe w nowoczesnym budynku z 2016 roku.
Mieszkanie o powierzchni 44,1 m2 z wystawą południowo - zachodnią znajduje się na bardzo wysokim parterze (ogród znajduje się ponad 2 metry nad poziomem gruntu - co zapewnia całkowitą prywatność, jest niewidoczny z ulicy).

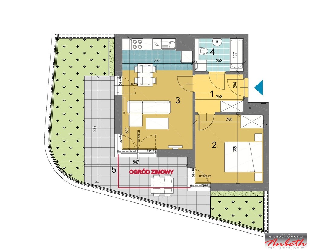
Rozkład mieszkania:
pokój dzienny połączony z aneksem kuchennym (ok. 21m2), sypialnia (ok. 13m2), łazienka z wanną i wc (ok. 4,5m2) i przedpokój (ok. 5m2)
Okna z roletami zewnętrznymi.
Mieszkanie dwustronne: południe - zachód.

Lokalizacja:
- Kraków - Zabłocie to bardzo dynamicznie rozwijająca się dzielnica, oferująca możliwość spokojnego mieszkania i odpoczynku w pobliżu centrum oraz swobodną komunikację niemalże z wszystkimi punktami miasta;
- bezpośrednie sąsiedztwo Bulwarów Wiślanych zapewnia dostęp do zielonych terenów rekreacyjnych, ścieżek spacerowych i rowerowych 
- w pobliżu Uniwersytet Andrzeja Frycza Modrzewskiego, na który można dojść pieszo
- w okolicy rozwinięta infrastruktura handlowo - usługowa, szkoły, przedszkola
- znakomita miejska komunikacja autobusowa, tramwajowa, a ponadto w pobliżu stacja PKP Kraków Zabłocie

Czynsz z zaliczkami na wodę i ogrzewanie przy dwóch osobach to około 600 zł

Komfort mieszkania podnosi zamontowana klimatyzacja.
Przynależny do mieszkania zielony ogród posiada już kilkuletnie nasadzenia: drzewka owocujące (wiśnię, śliwę, jabłoń kolumnową, morwę i winorośl pnąca sie na balustradzie) oraz pięknie kwitnącą magnolię.

Do mieszkania przynależy podziemne miejsce parkingowe (16m2) i komórka lokatorska (3,72 m2) dodatkowe płatne łącznie 100 000 zł.
Świadectwo charakterystyki energetycznej - SCHE/12636/439/2016 ważne do dnia 20.11.2026 roku.

Mieszkanie bardzo funkcjonalne, do zamieszkania od zaraz. Cena podlega negocjacji !!!
!!! Polecamy !!! Zapraszamy do zaobaczenia na żywo !!! Kontakt - 500 094 148


 

Certyfikat energetyczny

Klasa energetyczna
A+
A
B
C
D
E
F
G
Wskaźnik EP kwh/(m2 rok)
130
130
130
130
130
130
130
130
Wskaźnik EK: 51,49
kwh/(m2rok)
Wskaźnik EU: 90,00
kwh/(m2rok)

Lokalizacja

Kalkulator kredytowy

Kwota kredytu
PLN
Lata
Oprocentowanie roczne
%
Wysokość raty

Kalkulator kosztów

Cena nieruchomości
PLN
PLN
Taksa notarialna (opłata notarialna)
PLN
VAT od taksy notarialnej (opłaty notarialnej)
PLN
Wypisy aktu notarialnego - około
PLN
Wniosek do WKW
PLN
Prowizja
%
Wysokość prowizji
PLN
Podatek od czynności cywilno-prawnych
Taksa notarialna (opłata notarialna)
VAT od taksy notarialnej (opłaty notarialnej)
Wniosek do WKW
VAT od wniosku do WKW
Prowizja agencji nieruchomości
VAT od prowizji agencji nieruchomości
Wypisy aktu notarialnego - około
RAZEM(cena + opłaty)

Podobne oferty

1 220 000 zł
nowa oferta
mieszkanie na sprzedaż - Kraków, Krowodrza, Łobzów, Poznańska
Kraków, Krowodrza, Łobzów, Poznańska
Powierzchnia: 76,81 m2
Cena/m2: 15 883,35 zł
Pokoje: 3 pokoje
MS-6534

Notatnik
812 500 zł
nowa oferta
mieszkanie na sprzedaż - Kraków, Prądnik Czerwony, Nuszkiewicza
Kraków, Prądnik Czerwony, Nuszkiewicza
Powierzchnia: 65,00 m2
Cena/m2: 12 500,00 zł
Pokoje: 3 pokoje
MS-6535

Notatnik
Proszę wypełnić to pole
Proszę wypełnić to pole
Proszę wypełnić to pole
Proszę wypełnić to pole
Proszę zaznaczyć klauzulę

Ta strona wykorzystuje pliki cookies w celach statystycznych oraz w celu dostosowania naszych serwisów do indywidualnych potrzeb klientów. Zmiany ustawień dotyczących plików cookie można dokonać w dowolnej chwili modyfikując ustawienia przeglądarki. Korzystanie z tej strony bez zmian ustawień dotyczących cookies oznacza, że będą one zapisane w pamięci urządzenia.

rozumiem